Wassenaar, Johan de Wittstraat 73
verkocht

Plattegronden


Afbeeldingen

Begane grond
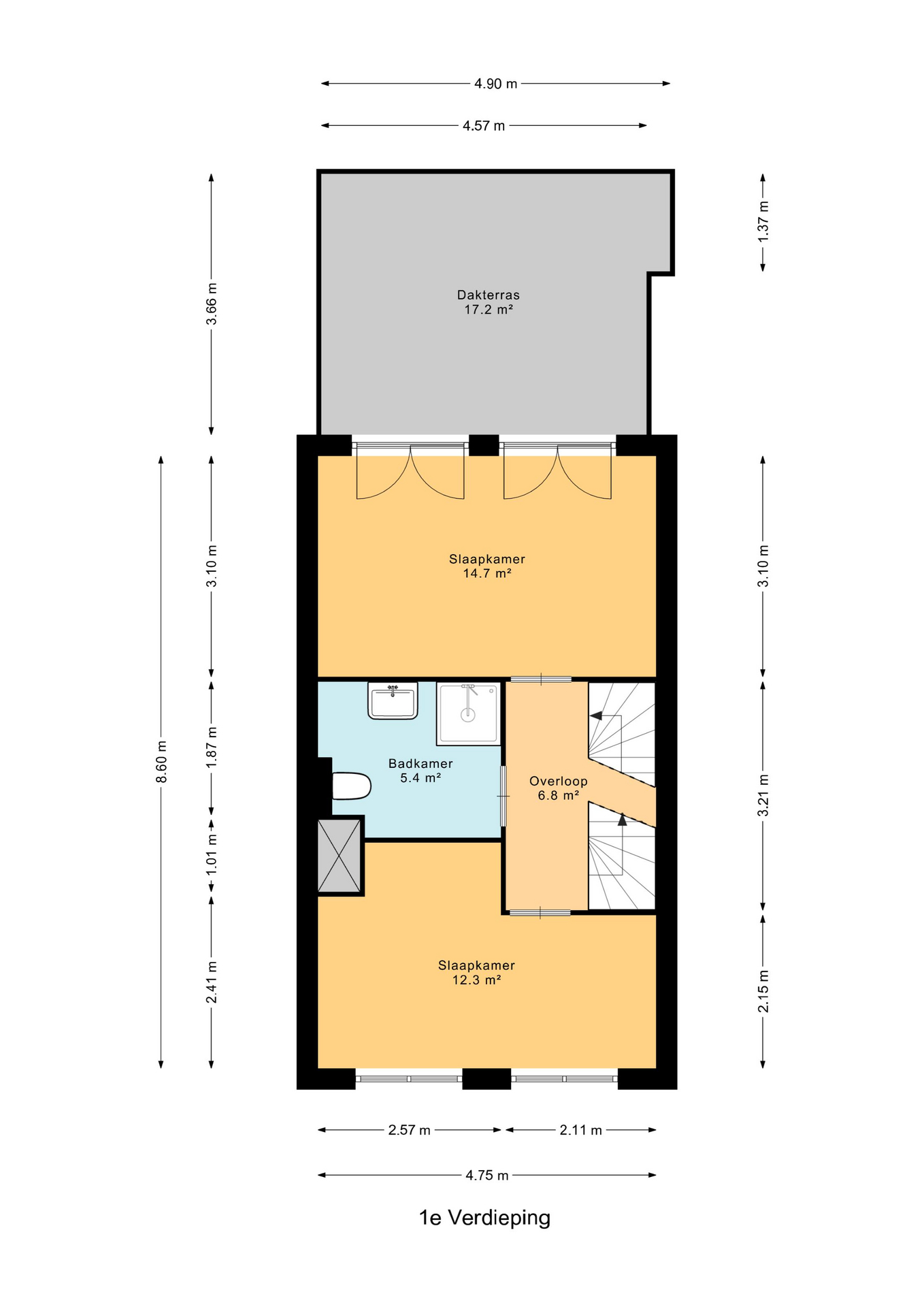
1e verdieping
2e verdieping
Berging
Parkeerplaats