Spirit Vastgoed respecteert uw privacy en gebruikt daarom alleen cookies die noodzakelijk zijn voor het functioneren van de website.
Klik hier voor meer informatie.
Het vrijstaande huis biedt talloze mogelijkheden. Denk aan ouders die dichtbij willen wonen, terwijl ze toch hun eigen privacy behouden. Ook (semi)zelfstandig wonende kinderen vinden hier een perfecte tussenstap naar volledige zelfstandigheid, met een veilige omgeving en de voordelen van de nabijheid.
Daarnaast leent de ruimte zich uitstekend voor een commerciële invulling, zoals een charmante Bed & Breakfast. De landelijke ligging en de aantrekkingskracht van de Zilverstad Schoonhoven vormen een ideale combinatie voor gasten die rust en authenticiteit zoeken.
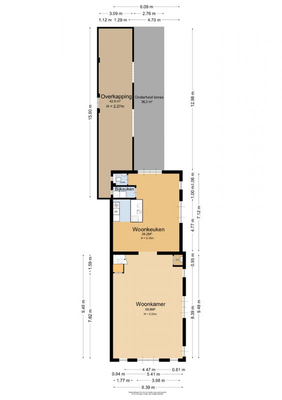
De woning heeft een eigen entree waar u binnenkomt in een grote leefruimte (circa 60 m2). Daarachter bevindt zich de woonkeuken (circa 40 m2) met nieuwe keuken en openslaande deuren naar een privé terras. Verder is er een wasruimte en een separaat toilet.
