Spirit Vastgoed respecteert uw privacy en gebruikt daarom alleen cookies die noodzakelijk zijn voor het functioneren van de website.
Klik hier voor meer informatie.
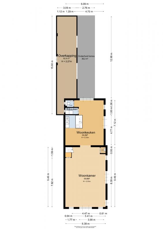
Vanuit de woonkeuken zijn er openslaande deuren naar een privé terras
